El traspaso de tierras de lo público a lo privado es una constante que ocurre en la Ciudad de Buenos Aires. Si bien el hecho sintetiza el avance de negocios y la entrega del patrimonio público porteño a empresas, esto va en sintonía con la cosmovisión que un espacio político tiene de la vida misma. En la Ciudad, en apenas cinco años habilitaron nuevas construcciones en más de 10 millones de metros cuadrados.

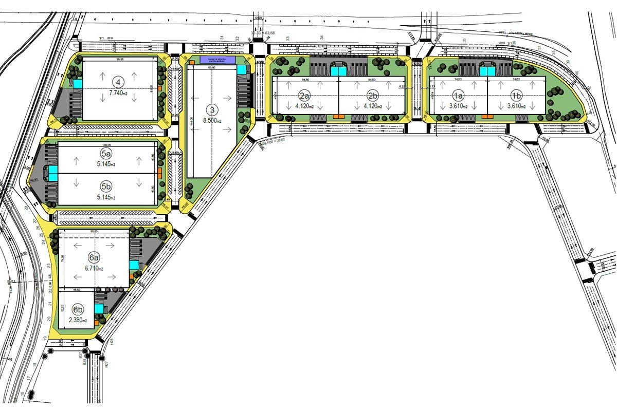
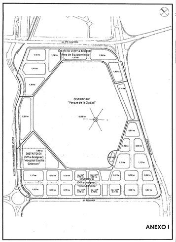
En las últimas horas se conoció un nuevo capítulo de la venta de tierras públicas a sectores privados, más precisamente a una sola firma. La venta corresponde a una parte del Parque de la Ciudad mediante una subasta pública gestionada por el Fideicomiso Corporación Buenos Aires Sur S.E., en el marco de la Ley N° 5.704 y con un Precio Base de U$S 1.900.000. El gobierno porteño entrega una superficie total aproximada de 78.862,2 m², en el distrito de Zonificación U 57 “Área de Equipamiento Lacarra” que incluyen las Manzanas 79B a 79G.

Son un total de ocho hectáreas, un combo de tierras públicas que fue desafectado en 2014 cuando la Legislatura porteña aprobó la rezonificación de los terrenos del parque para que sean utilizados en los Juegos Olímpicos de la Juventud del 2018 y para la construcción del autodenominado Barrio Olímpico. Según la versión oficial, esos terrenos vendidos serán destinados para la creación de un parque logístico y serán entregados a un solo comprador.
El remate de las tierras públicas se realizará en nombre de la Corporación del Sur, y se realizará el 19 de noviembre, día en que se conocerán las ofertas del denominado proceso de «enajenación en bloque con cargo».
Desde el Observatorio del Derecho a la Ciudad, aseguran que “este proceso enfrenta cuestionamientos legales al cuestionar la constitucionalidad de la Ley 5.704, argumentando que las manzanas que se venden formaban parte del Parque de la Ciudad (el segundo pulmón verde metropolitano), lo que constituiría una violación del mandato constitucional de proteger e incrementar los espacios verdes, de la intangibilidad o protección de la integridad de los parques, y del principio de no regresividad ambiental”.
Así se enmarca en el artículo 27 de la Constitución porteña, donde establece la “protección e incremento de los espacios públicos de acceso libre y gratuito” y “la preservación e incremento de los espacios verdes, las áreas forestadas y parquizadas, parques”.
El informe de la ONG, asegura que estas 6 manzanas que se subastan, hasta la aprobación de La Ley N° 5704, pertenecían al Parque de la Ciudad. “Tanto la Constitución como el Plan Urbano Ambiental otorgan la máxima protección a los parques públicos para conservar su integridad”.
Cabe destacar que, además, el Plan Urbano Ambiental (Ley N° 2930) dispone que éste tiene como objetivo “el incremento, recuperación y mejoramiento del espacio público y de la circulación, de los parques, plazas y paseos y de las áreas de calidad patrimonial, a fin de dar lugar a funciones vitales como las de encuentro, relax, confort y socialización, asegurando a todos los habitantes el derecho a su uso, y de otorgar identidad a las distintas zonas de la ciudad”.
Agrega que se debe cumplir con “(e)l mejoramiento funcional y ambiental de los parques, plazas y paseos existentes y ampliación de la oferta a escala urbana y barrial, a través de las siguientes acciones: 1. Promover su mejoramiento y rediseño manteniendo su integridad y considerando la diversidad de las demandas sociales”.
La entrega de tierras al sector inmobiliario
En mayo de este año, Tiempo realizó un informe en base a un relevamiento realizado por especialistas que integran distintas agrupaciones vecinales de diferentes comunas.
En el documento realizado por organizaciones de Almagro, Caballito, Parque Avellaneda, Agronomía Colegiales y Palermo, entre otras; titulado “Compromiso ambiental para candidatos a legisladores de la ciudad”, denuncian que las últimas actualizaciones al Código Urbanístico de la Ciudad satisficieron los intereses del mercado inmobiliario profundizando los problemas de los barrios, y que “en los últimos cinco años habilitaron nuevas construcciones en más de 10 millones de metros cuadrados».